长春情侣酒店设计_情侣酒店设计精品酒店设计时尚酒店设计
长春情侣酒店设计_情侣酒店设计精品酒店设计时尚酒店设计
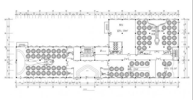
百万级沉浸式婚礼宴会已再次升级。长春双阳晨宇酒店占地229 1. 7平方米,设有4个主题宴会厅长春情侣酒店设计,为您带来不一样的视觉盛宴。

长春双阳晨宇酒店的百万级沉浸式婚礼宴会再次升级长春情侣酒店设计,为您带来不一样的视觉盛宴
我们将以崭新的姿态,美丽与艺术的融合以及独特的设计理念开始新时代的发展。
公共城市
通往未来之门
艺术是人类进化的工具。它充当了过去与未来之间的一扇门。

用简单柔和的光线勾勒出未来美丽世界的入口。

在日落时查看银河系
采用解构主义方法,一层又一层的重叠和互补,并结合了阳光和暮光之美,随时可以使用。

地面反射产生有趣的空间对比,补充了空间之美的深度。
光影共舞
设计不仅是对功能的诠释,还具有哲学和艺术美感,并自然渗透到每个观看者的思维中。

自然的色调过渡改变了人们的视野。这种轻巧灵活的处理方法为协商创造了一个温暖而纯净的地方。
同时开会时空
时间将过去与未来区分开来,并为时间指明方向。

巧妙利用光源长春情侣酒店设计,将过道和大厅的空间连接起来,功能与美感并存,人与艺术之间有着敏锐的互动。

幻影和幻影
空间转弯是交织的。

大,小,圆形和矩形,装饰布局的循环以及结构之间的对称性(例如重叠的幻觉)都会影响视觉。





宴会厅
0 1.唤醒
这是光与梦交织的绝妙体验。


在这个物质欲望时代,远离人群,体验光与梦的交织,优美的音调和平庸的生活给太空带来的仪式感。


0 2.遭遇到遭遇
一旦有了对美丽的怀旧之情长春情侣酒店设计_情侣酒店设计精品酒店设计时尚酒店设计,这个地方就会成为最琐碎的爱情载体。


在温暖的自然光下,与她的相遇和幸福是恩典的开始,也将成为可以经常回想的老年。细节营造出诱人的秘密空间。最悠闲的事情是与外界隔绝,并增加了传奇故事的幻觉。



0 3.对FRIST KNOWLEDGE的首次认识
让人联想到水的岁月。带有淡淡的回味痕迹。


纯色与高品质材料的结合展现了纯正的奢华与知性。轮廓有些随意和悠闲,但对规格的把握却不佳。在灯光和羽毛灯的照耀下,灯光的深浅是美好每一年的印记。


0 4.一起住
等待所有动荡消失,等待一阵微风进入房间。


琥珀色的蜂蜜,覆盖着羽毛。虚荣与喧嚣被一堵墙隔开,轻巧而奢华的石头与芬芳的黑色沉睡。

在每个时代,追求美和追求美的创新者不乏其人。我们秉承过去和未来,并使用当代语言来描述晚餐的温度。
平面布置图

项目名称|晨宇酒店
项目地址|长春双阳
项目区域| 229 1.7㎡
设计团队|迈晨商业空间美学

